Vääksyntie 2
00510, Helsinki
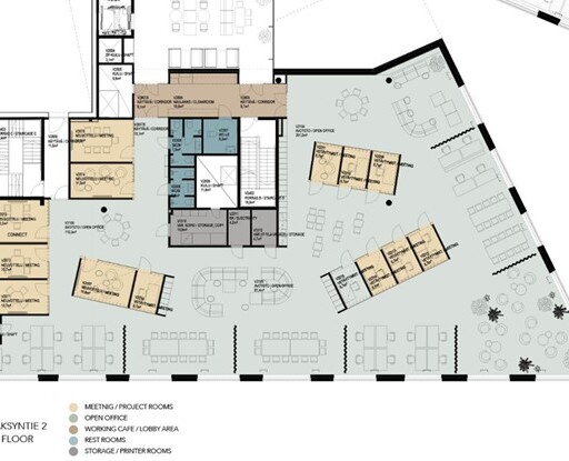
Vuokrattavana toisen kerroksen korkeatasoinen toimistotila Vallilassa, osoitteissa Vääksyntie 2. Korttelin kulmassa sijaitsevassa toimitilassa on suuret ikkunat Teollisuuskadun ja Vääksyntien suuntiin. Avotoimistoa, työhuoneita, neuvottelutilat ja wc
MODERNI PÄÄKONTTORITOIMISTO
Tämä OP:n pääkonttorina tunnettu toimistokortteli on moderni, vuosina 2015-2017 valmistunut JKMM Arkkitehtien suunnittelemana ja mm. LEED Gold -sertifikaatilla palkittu toimistorakennus. Arkkitehtonisesti upeat tilat ovat avaria ja valoisia, ja materiaalit parhaita mahdollisia. Palvelut rakennuksessa ovat erinomaiset, joista esimerkkeinä lounasravintoloita löytyy useita, aulapalvelu ja neuvotteluhuoneet ovat tasokkaita sekä myös kuntosali-, hieronta- ja kampaamopalvelut ovat työntekijöiden käytettävissä.
Toimitilat sijaitsevat osoitteissa Päijänteentie 12 ja Vääksyntie 2. Toimitilojen suunnittelussa on käytetty erityistä
huomiota tilojen joustavuuteen ja materiaalien
korkeaan laatuun. Vuokralaiset hyötyvät korttelin
keskellä sijaitsevan galleriakerroksen mukavuuksista
ja sen viidestä ravintolassa, jaettavista
neuvotteluhuoneista, kolmesta auditoriosta, Fressin
ylläpitämästä kuntosalista, kampaajasta, hierojasta
ja fysioterapeutista. Ratkaisut ilmanlaadun
parantamiseksi ja luonnonvalon määrän lisäämiseksi
edistävät terveyttä ja hyvinvointia tiloissa.
Vallilan alueella on ollut suuri merkitys Suomen
teollistumisen historiassa. Nyt alue on jälleen uuden
liiketoiminnan edelläkävijä ja kasvun keskus.
Huippuluokan palvelutarjonta on taattu, koska
Vallila kuuluu Suomen merkittävimpään
kehitysalueeseen, Pasila-Vallila-Kalasatama-akseliin,
ja sen rajanaapurina ovat kaksi dominoivaa
ostoskeskusta, Tripla ja Redi, sekä valtava määrä
uusia asuinrakennuksia. Ympäröivät asuinalueet
houkuttelevat erityisesti nuoria
huippuammattilaisia.
Kiinteistö hyötyy erinomaisista julkisen liikenteen
yhteyksistä, mukaan lukien lähes kaikki
kulkumuodot, ja se sijaitsee vain 2,5 km tai kahden
metropysäkin päässä Helsingin keskustasta.
Kiinteistöllä on suuri maanalainen
pysäköintikapasiteetti, johon on helppo pääsy
lähellä sijaitsevien pääteiden ansiosta.
Kiinteistö on kehitetty alusta alkaen tinkimättömällä
sitoutumisella kestävyyteen, ja se on saanut LEED
Gold -sertifioinnin. Sen elinkaaren hiilijalanjälki on
arvioitu ja otettu huomioon esimerkiksi
materiaalivalinnoissa ja purkumateriaalien
kierrätyksessä.
Parhaillaan käynnissä olevan kestävän
investointitutkimuksen tavoitteena on parantaa
energiatehokkuusluokitusta (”EPC”) ja varmistaa
asema kaikkien Helsingin toimistokiinteistöjen 10 %:n
joukossa EPC:n suhteen.
Kattavien julkisen liikenteen mahdollisuuksien lisäksi
lämmin maanalainen polkupyörähalli ja laadukkaat
saniteettitilat tukevat pyöräilyä vaihtoehtoisena
liikkumismuotona ja siten myös vuokralaisten
hyvinvointia. Tiivis kaupunkiympäristö yhdistettynä
kiinteistön valikoimaan palveluita edistää
autottomuutta ja vähentää liikkumiseen liittyviä
päästöjä.
Tilojen valaistus on varustettu älykkäillä antureilla,
jotka valaisevat yhden ryhmän kerrallaan riippuen
siitä, miten tiloja käytetään. Kaikki vuokrattavat tilat
on varustettu LED-valaistuksella. Tiloissa on lämpötila-antureita, jotka ovat yhteydessä rakennusautomaatioon ja pitävät olosuhteet
halutuissa raja-arvoissa. Ilmanvaihto toimii
aikataulujen mukaisesti, ja kokoushuoneissa on
hiilidioksidin mittausantureita, jotka lisäävät
ilmanvaihtoa, kun raja-arvot ylittyvät.















