Tammasaarenkatu 5
00180, Helsinki
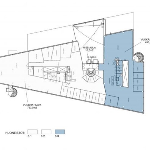
Vuokrataan upea ylimmän, 6. kerroksen toimistohuoneisto.
HTC Helsinki on upealla paikalla merellisessä Ruoholahdessa sijaitseva Business Park, joka tarjoaa tasokkaat toimistotilat hyvien palveluiden ja kulkuyhteyksien äärellä lähellä Helsingin ydinkeskustaa. Värikkään rakennuskokonaisuuden suunnitteli professori Kai Wartiainen arkkitehtiryhmineen ja se valmistui vuonna 2001.
HTC Helsingissä on viisi erillistä rakennusta, jotka on nimetty löytöretkeilijöiden veneiden mukaan: Nina, Pinta ja Santa Maria, Vega ja Kon-Tiki. Rakennukset tunnetaan arkkitehtipalkintoja voittaneista kilpailuista.
HTC Helsinki tarjoaa kaikille vuokralaisilleen ja kävijöilleen aulapalveluita, kaksi ravintolaa, neuvottelu- ja edustustiloja catering-palveluineen, auditorion, kuntosalin ym. huipputasoisia business park -palveluita. HTC Helsinkiä palvelee lisäksi yhteinen pysäköintihalli.
Kiinteistö sijaitsee hyvien kulkuyhteyksien varrella, kävelymatkan päässä metroasemalta.










