Linnoitustie 2a
02600, Espoo
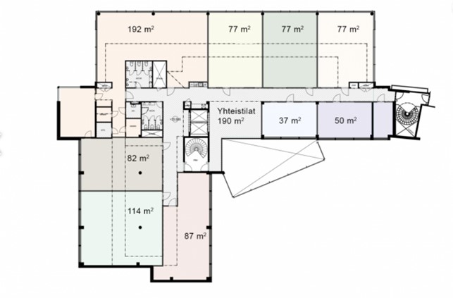
Vuokrattavana n. 113 m² toimisto 2. kerroksen pientoimistoalueella. Vuokra sisältää siivouksen, sähkön sekä aulapalvelun - tuo vain kalusteet! Keittiö, neuvottelutila, wc:t ja viihtyisä taukotila ovat pientoimistoalueen vuokralaisten yhteiskäytössä.
Quartetto Business Park on vuosina 2001–2012 rakennettu yrityspuisto Espoon Leppävaarassa. Yrityspuistossa on kahdeksan toimistotaloa, joissa toimii lähes sata yritystä. Rakennusten suunnittelussa on ollut mukana arkkitehtitoimisto Larkas & Laine.
Business Park Basso on osa Quartetto-yrityspuistoa ja se sijaitsee muutaman sadan metrin päässä kauppakeskus Sellosta. Leppävaaran kattavat liikenneyhteydet ja palvelut houkuttelevat alueelle niin ammattitaitoisia työntekijöitä kuin menestyviä yrityksiä. Leppävaarasta onkin muodostunut yksi pääkaupunkiseudun arvostetuimmista liike-elämän keskuksista.
Julkisen liikenteen erinomaiset bussi- ja junayhteydet täydentyivät tuoreeltaan pikaratikkalinjan aloitettua liikennöinnin Quartetto Business Park Basson vierestä ja autolla liikkuville on autopaikkoja vuokrattavissa kiinteistön kellarikerroksen parkkihallista sekä piha-alueelta
Quartetto Basso tarjoaa yrityksillensä lämminhenkisen ja kotoisan ilmapiirin. Toimitilat ovat muuntojoustavia ja niistä saa helposti muokattua käyttäjillensä sopivat tilat. Isot ikkunat tuovat raikasta luonnonvaloa sisätiloihin, ja näkymät Leppävaaran kaupunkimaisemiin ovat upeat.
Basson toiseen kerrokseen on valmistumassa kesäksi 2024 toimistohotelli, jonka modernit tilat ja yritysten välinen yhteisöllisyys tekevät työpaikalle tulosta mukavaa. Viihtyisät toimistot, lämpimän pehmeä värimaailma ja kohtaamisiin kutsuvat yhteistilat luovat inspiroivan työympäristön. Pientoimistoalue koostuu 37-269 m2 kokoisista muuttovalmiista toimistohuoneista, yhteisestä keittiötilasta, neuvotteluhuoneesta ja mukavan rennosta loungesta.













