Eteläesplanadi 2
00130, Helsinki
Upea katutason liiketila johon sisäänkäynti ja näyteikkunat Etelärannan puolella, osoite Eteläranta 20.
Vuonna 1910 Suomi-vakuutusyhtiö päätti rakentaa liikerakennuksen Eteläesplanadin ja Etelärannan kulmaan. Kuuluisan rakennuksen arkkitehtinä toimi Karl Håkan Einar Lindahl.
Rakennus valmistui 1912, jolloin se edusti erittäin modernia ja nykyaikaista tyyliä. Vuonna 1952 valmistui Etelärannan puoleinen lisäosa, joka toi lisää toimistotilaa. Rakennuksen valmistumisesta lähtien kiinteistössä ovat toimineet merkittävät yritykset kukin omien yksilöllisten tarpeidensa ja toimintojensa mukaan.
Eteläesplanadi 2 on liike- ja toimistotalo, jossa yhdistyvät historiallisen rakennuksen charmikkuus arvokkaine aulatiloineen, joita tukee 2000-luvun tekniikka ja uudistunut tilajako. Vuosina 1996-2006 rakennukset peruskorjattiin pala palalta vastaamaan kiinteistön nykyisiä käyttötarpeita. Rakennuksissa on 8 kerroksessa yhteensä noin 14 500 neliömetriä erilaisia toimitiloja, mm. suosittu ja nykyaikainen kahvila-ravintola, joka tarjoaa ruokaa ja erilaisia palveluja aamusta iltaan.
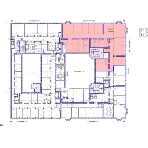
Jokainen kerros voidaan jakaa neljään yksikköön, joka mahdollistaa tehokkaat ja toimivat tilaratkaisut. Kerrosten välinen kulku hoituu viidellä, historiallisella hissillä.
Vertaansa vailla oleva sijainti Eteläesplanadin ja Etelärannan kulmassa, Kauppatorin laidalla, josta näkymät Esplanadin puistoon ja Tuomiokirkolle, Kauppatorin yli Presidentinlinnaan ja Uspenskin katedraaliin, sekä Eteläsataman yli Katajanokalle ja Olympiaterminaaalin yli merelle, Suomenlinnan suuntaan.
Inspiroivaa sijaintia ympäröivät runsas kahvila- ravintola- ja kulttuuritarjonta, luonto merimaisemineen, sekä arkkitehtoninen historia.
Kiinteistön upeassa sisääntuloaulassa toimiva aulapalvelu ja toisen kerroksen kokoustilat, samoin kuin sisäpihan kahvila-ravintola catering-palveluineen palvelevat kaikkien kiinteistön käyttäjien tarpeita. Ydinkeskustan kaikki palvelut kävelyetäisyydellä.
Kiinteistöllä oma pysäköintihalli ja polkupyöräparkki. Kadunvarsipysäköinnin lisäksi myös useita julkisia pysäköintihalleja muutaman sadan metrin päässä.
Raitiovaunupysäkki rakennuksen edessä, Kaisaniemen ja Rautatientorin metroasema ja bussit n. 400m.










