Erottajankatu 5
00120, Helsinki
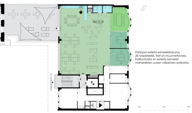
Erittäin siisti, remontoitu avotoimisto, jossa on erillisiä kokoushuoneita ja oma ulkoterassi. Myös rakennuksen porrasaula on vastaremontoitu.
Historiallista arvokkuutta henkivä toimisto- ja liiketilakiinteistö vehreällä paikalla Helsingin ydinkeskustassa. Kiinteistöstä on näkymät vieressä sijaitsevaan vehreään Diana-puistoon ja kiinteistön sisäpihalla sijaitsee Diana Auditorio. Jugend-tyylisen, perinteikkään rakennuksen suunnitteli Valter Thomé ja se valmistui Erottajankatu 5:een vuonna 1910 hänen työskennellessään Valter Thomé & Bröderna Udd -arkkitehtitoimistossa.
Iso Roobertinkadun ravintolakeskittymän palvelut löytyvät läheltä ja Punavuoren trendikkäät kaupat sekä keskustan kaikki palvelut kävelyetäisyyden päässä. Viereisessä Erottaja 7:ssa on Erottajan Kasino, josta on vuokrattavissa sauna- ja neuvottelutilaa.
Autolla työmatkansa taittaville on kiinteistössä oma parkkihalli ja yleiset pysäköintihallit sijaitsevat lähellä. Aimo Park Iso-Erottaja -parkkihalliin sisäänkäynti on viereiseltä Ludviginkadulta. Myös muut keskustan pysäköintihallit ovat lyhyen kävelymatkan etäisyydellä. Työmatkapyöräilijöitä palvelee kiinteistön polkupyöräparkki sekä suihkutilat.
Kiinteistölle on myönnetty BREEAM In-Use Very Good -tason ympäristösertifikaatti. BREEAM (Building Research Establishment Environmental Assessment Method) on kansainvälinen rakennusten ympäristöluokitusjärjestelmä, joka tähtää rakennuksen käytön ympäristövaikutusten vähentämiseen sekä terveellisempien työympäristöjen kehittämiseen. Kiinteistön omistaa Sponda.






















