Pohjoinen Rautatiekatu 25
00100, Helsinki
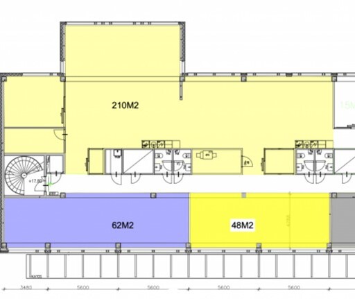
2. kerroksen valoisa toimistohuoneisto vuokrattavana.
PR25:n kiinteistöstä Pohjoiselta Rautatiekadulta löytyy viihtyisää toimistotilaa Kampin kupeesta. Toimistokerrokset ovat selkeitä ja helposti muokattavissa.
Kellarikerroksissa vuokralaisia palvelee erittäin tilava pyöräkellari pukuhuoneineen. Lisäksi kiinteistöstä löytyy varastotilaa sekä pysäköintihalli 15:lle autolle. Ensimmäisen kerroksen neuvottelu- ja kokoustilat ovat kaikkien vuokralaisten yhteiskäytössä.
Kiinteistön sijainti metron ja Kampin bussiterminaalin tuntumassa ja pyöräilyn pääväylä Baanan varrella on erinomainen. Kampin kauppakeskuksen ja koko ydinkeskustan laaja palveluvalikoima kävelyetäisyydellä.






















