Metsänpojankuja 4
02130, Espoo
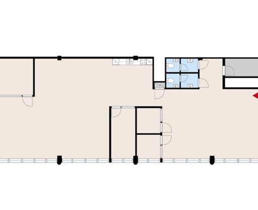
Vuokrattavana toisen kerroksen 272,5 m² avo- ja huonetoimistotila Pohjois-Tapiolassa. Huoneiston pinta-ala on 256,5 m² ja aulan jyvitetty pinta-ala 16 m². Tila voidaan yhdistää viereisten tilojen kanssa isommaksi tilaksi.
Metsänpojankuja 4 on siisti toimisto- ja liikekiinteistö hyvien liikenneyhteyksien varrella Pohjois-Tapiolassa. Kiinteistössä toimii tällä hetkellä mm. ABC- liikenneasema, joka tarjoaa palveluitaan pääsääntöisesti 24h (mm. S-market, polttoaineenjakelu, latauspalvelu) kiinteistössä asioiville.
Kiinteistö sijaitsee loistavalla paikalla Kehä I:n varrella kävelymatkan päässä Aalto Yliopiston metroasemalta. Liikenneyhteydet ovat hyvät niin omalla autolla kuin julkisillakin. Liikenneaseman palveluiden lisäksi lähialueella sijaitsee mm. muita lounasravintoloita ja monia muita palveluita.
Kehä I:tä pitkin kulkevat lukuisat bussit, ja pikaraitiolinja, samoin kuin runkolinja 550, joka palvelee hyvin myös Metsäpojankujan toimistovuokralaisia. Lähin metroasema on Aalto-yliopisto, josta kävelee alle 15 minuutissa. Tapiolan keskus ja Kauppakeskus Ainoan kattavat palvelut ovat vain noin 2 km päässä. Kiinteistöltä on myös vain noin 8 minuutin kävelymatka merelliselle Laajalahden luonnonsuojelualueelle sekä Espoon rantaraitille.










