Itsehallintokuja 3
02600, Espoo
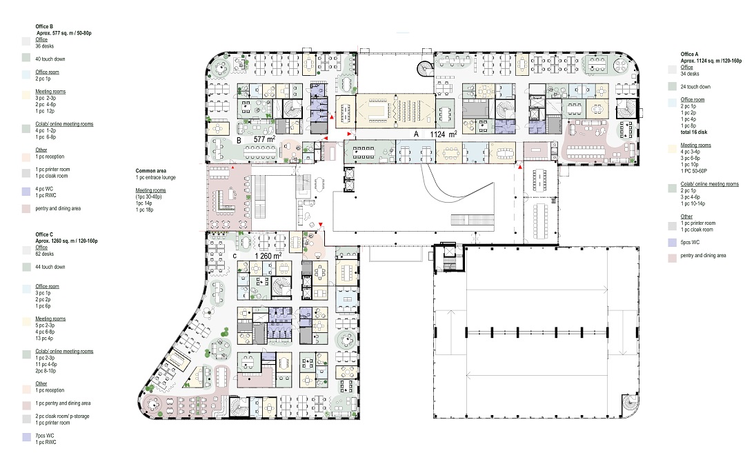
Vuokrattavana laadukasta 2. kerroksen toimitilaa modernista toimistotalosta. Muuntojoustava tila joka on mahdollista vuokrata 133 m² keskiatriumin kanssa tai ilman. Tila on myös yhdistettävissä viereisen tilan kanssa suuremmaksi kokonaisuudeksi.
Colony sijaitsee Leppävaaran toimistokeskittymässä, Kehä I:n eteläpuolella, Turunväylän kupeessa. Colony Leppävaara on laadukkaasti (mm. LEED Gold ) vuonna 2019 rakennettu toimistotalo, jonka yhden toimistokerroksen maksimi kerrosala on 3320m2 ja tiloja on kaikkiaan 6 kerroksessa.
Tullessasi sisään Colonyyn, sinut otetaan vastaan rakennuksen atriumpihalla sijaitsevan aulapalvelun toimesta. Aula-alueelta löydät tarvitsemasi tiedon lisäksi esim. kahvia odotellessasi ja Colonyn vuokralaisena voit halutessasi myös hyödyntää Lounge-palvelua etätöihin .Colonyn vuokralaisilla on mahdollisuus hyödyntää muiden Colony- toimistojen Loungeja työskennelläkseen kulloinkin parhaiten sopivassa toimipisteessä (Leppävaara, Tapiola, Aviapolis, Pitäjänmäki).
Kiinteistössä on oma mm. lounasravintola, eri kokoisia vuokrattavissa olevia neuvotteluhuoneita ja kuntosali. Leppävaaran keskustan palvelut ja kauppakeskus Sello ovat n. kilometrin päässä.
Bussipysäkille n. 50m, juna-asemalle n. 1100m ja raitiovaunupysäkille n. 750m. Rakennuksen yhteydessä on pysäköintitalo, joka tarjoaa reilusti pysäköintipaikkoja kiinteistön käyttäjille ja ulkopaikkoja mm. vieraille löytyy myös rakennuksen edustalta.
Kiinteistöllä on ympäristöluokitus LEED Gold



